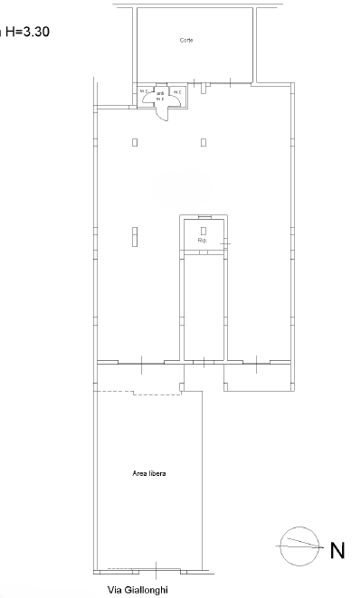
Cod. 1193 – A Castelvetrano, in zona ad alto indice veicolare ed esattamente nella via Giallonghi, magazzino recentemente ristrutturato di circa 300 mq composto nell’insieme da un ampio vano, doppi servizi, ripostiglio e ufficio. Completa l’immobile, dotato di duplice accesso e pompe di calore, uno spazio esterno di esclusiva pertinenza (antistante ad uso parcheggio privato e retrostante adibito a deposito) di totali circa 150 mq. La proprietà, attualmente locata, si presta per essere destinata a diverse tipologie di attività. Prezzo trattabile.
| Titolo | Prezzo | Stato | Tipo | Area | Scopo | Camere da letto | Bagni |
|---|